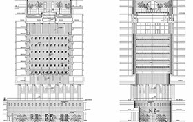
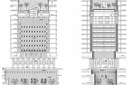
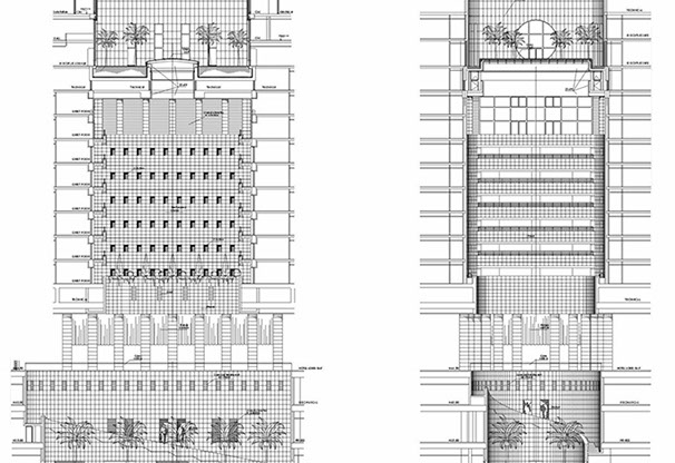
Das Royal Hotel liegt im Zentrum von Amman, Zahran St. 3rd Circle in der Nähe der Altstadt.

 

Der Gebäudekomplex beherbergt neben dem 5*Hotel, das in der 10.–21. Etage liegt, ein Einkaufzentrum, ein Kinozentrum, mehreren Spezialitäten Restaurants sowie einen außergewöhnlichen Spa und Wellness Bereich. Auf 31 Etagen verteilen sich insgesamt 282 geräumige und komfortable Zimmer mit moderner Ausstattung und fantastischem Ausblick, die keine Wünsche offen lassen. Ein weitläufiger Konferenzbereich mit 1000m² großem Ballsaal ergänzen das überwältigende Angebot. Das Hotel bietet durch seine Lage auf dem höchsten Punkt der Stadt einen einmaligen Ausblick.

Le Royal

Hotel Amman

BGF: 118.000 m²

Geschosse: 31

Zimmer: 282

Bau: 1996–2002

Baukosten: ca. € 200 Mio.

Bauherr: Depa Ltd., U.A.E.

Consultat: General Mediterranean Consultant

 

Meine Leistungen: Ausführungs- und Detailplanung, Innenraum Design

 

Kontakt    Impressum & Datenschutzerklärung

 

 

© Simone Bahr 2020